제품개요
큰-직경 굴곡공칭 직경이 DN200 이상인 파이프라인 시스템용 특수 방향성 파이프 피팅입니다. 회사의 전문 강관 굽힘 기술로 제조된 이 제품은 최대 가공 직경이 DN2200이고 굽힘 반경은 3D~10D이며 엔지니어링 요구 사항에 따라 모든 각도로 맞춤 제작이 가능합니다.{5}} 용접 엘보와 비교하여 굽힘은-현장 용접 접합부를 50% 이상 줄여 용접 부품의 잠재적 위험을 효과적으로 줄이고 파이프라인 시스템의 전반적인 작동 신뢰성을 더욱 향상시킬 수 있습니다. 여러 국가 및 산업 표준을 준수하는 이 제품은 여러 국가 주요 파이프라인 프로젝트에 공식적으로 적용되었으며 대규모 파이프라인 엔지니어링 분야에서 허베이 하이하오(Hebei Haihao)의 핵심 지원 제품이 되었습니다.{10}}



대구경 벤드
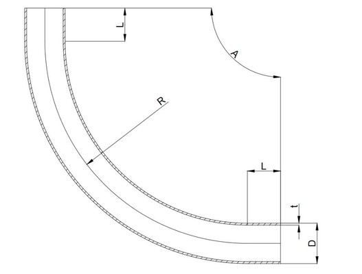
치수

| 공칭 크기 DN | 파이프 외경(D) | 굽힘 반경(R) | 벽 두께(t) | 굽힘 각도(A) | 직관부 길이(L) | |
| Ⅰ | Ⅱ | |||||
| 600 | 610 | 630 | R=3D~10D | 5-60mm | 90 이하 | 고객 사양에 따라 |
| 650 | 660 | R=3D~8D | ||||
| 700 | 711 | 720 | R=3D~8D | |||
| 750 | 762 | R=3D~8D | ||||
| 800 | 813 | 820 | R=3D~8D | |||
| 850 | 864 | R=3D~8D | ||||
| 900 | 914 | 920 | R=3D~8D | |||
| 950 | 965 | R=3D~8D | ||||
| 1000 | 1016 | 1020 | R=3D~8D | |||
| 1050 | 1067 | R=3D~8D | ||||
| 1100 | 1118 | 1120 | R=3D~8D | |||
| 1150 | 1168 | R=3D~8D | ||||
| 1200 | 1219 | 1220 | R=3D~8D | |||
| 1250 | 1270 | R=3D~6D | ||||
| 1300 | 1320.8 | R=3D~6D | ||||
| 1350 | 1371.6 | R=3D~6D | ||||
| 1400 | 1422.4 | R=3D~6D | ||||
| 1450 | 1473.2 | R=3D~6D | ||||
| 1500 | 1524 | R=3D~6D | ||||
| 1600 | 1625.6 | R=3D~6D | ||||
| 1800 | 1828.8 | R=3D~6D | ||||
| 2000 | 2032 | R=3D~6D | ||||
장점
넓은 대구경{0}}가공 범위
허베이 Haihao의 최대 가공 직경큰-직경 굴곡장거리 석유 및 가스 전송 파이프라인과 대규모 산업 프로젝트 파이프라인의 지원 요구 사항을 완벽하게 충족할 수 있는 DN2200에 도달했습니다.-
긴-반경 설계로 낮은 중간 흐름 저항
굽힘 반경크기가 큰 직경 굴곡3D보다 크거나 같으므로 파이프라인에서 매체의 흐름 저항을 효과적으로 줄이고 매체 운송 중 압력 손실을 최소화할 수 있습니다.
강력한 적응성을 갖춘 맞춤형 굽힘 각도
복잡한 지형 및 산업 현장 프로세스의 파이프라인 레이아웃 및 방향 요구 사항에 완벽하게 적응할 수 있는 15도에서 180도까지 각도의 맞춤형 처리를 지원합니다.
매개변수
- 벽 두께 일정:Sch10, Sch20, 성병, Sch40, Sch80, Sch160, XXS.
- 굴곡 반경:R=1.5D(짧은 반경), R=3D, 5D, 6D, 8D, 10D(긴 반경) 또는 엔지니어링 도면에 따라 맞춤화됩니다.
- 굽힘 각도:15도, 30도, 45도, 60도, 90도, 180도 및 비표준 각도-.
- 실행 표준:GB/T 12459, GB/T 13401, ASME B16.9, SY/T 5257, SH 3408, HG/T 21635.
회사 서비스
Hebei Haihao는 판매 전 기술 도킹부터 현장 배송 후-지원까지 -대직경 굽힘에 대한 핵심 지원 서비스를 제공합니다.-사전 판매 전문 팀은 정확한 굽힘 매개변수를 결정하기 위해 설계 조사, 현장 측정 및 매개변수 계산에 협력합니다.- 비표준 요구 사항에 대해 단일-맞춤 제작이 가능하며, 금형 개봉 없이 맞춤 제작 제품의 생산 주기를 단축할 수 있습니다. 매우-긴 구부러진 튜브는 배송 전 충돌 방지 및 변형 방지 처리로 강화되었으며, 손상 없는 배송을 보장하기 위해 특수 운송이 조정되었습니다.- 도착 시 완전한 프로세스-추적 가능한 품질 보고서가 제공되며, 전문 기술자가 현장 기술 브리핑 및 문제 해결 지원을 제공합니다.-
인기 탭: 대구경 벤드, 중국 대구경 벤드 제조업체, 공급업체, 공장
