제품개요
핫 벤드 파이프중주파 유도가열을 이용하여 강관을 플라스틱 상태로 가열한 후, 밀어서 성형하고, 구부린 후 급속 냉각하는 공정입니다. 이 공정은 균일한 파이프 벽 두께를 보장하며, 외부 아크 측의 박화율은 10% 미만, 매끄럽고 주름이 없는 - 내부 아크 측, 높은 굽힘 정확도, 굽힘 후 열처리를 거쳐 응력을 제거하는 능력과 안정적인 재료 특성을 유지하는 능력을 보장합니다.핫 벤드 파이프다양한 유형의 강철과 직경에 적합하고, 다양한 곡률 반경과 각도의 맞춤 설정을 지원하며, 석유 및 가스 운송, 화학 공학과 같은 고압 및 고온-환경에서 널리 사용됩니다.
기술적인 매개변수
1. 파이프 직경 범위:Φ159mm - Φ1620mm(맞춤형)
2. 벽 두께 범위: 3mm - 120mm
3. 소재 시리즈:탄소강: 20#, WPB, Q345B, L245-L485; 합금강: 12Cr1MoV, 15CrMo, A335P11/P22/P91; 스테인레스 스틸: 304/304L, 316/316L, 321; 파이프라인 강철: X42 - X80
4. 굽힘 각도:0도 - 100도
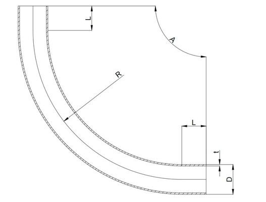
핫 벤딩 파이프
치수

|
공칭 크기 DN |
파이프 외경(D) |
굽힘 반경(R) |
벽 두께(t) |
굽힘 각도(A) |
직관부 길이(L) |
|
|
Ⅰ |
Ⅱ |
|||||
|
150 |
168.3 |
159 |
R=3D~10D |
5-60mm |
90 이하 |
고객 사양에 따라 |
|
200 |
219.1 |
219 |
R=3D~10D |
|||
|
250 |
273 |
273 |
R=3D~10D |
|||
|
300 |
323.9 |
325 |
R=3D~10D |
|||
|
350 |
355.6 |
377 |
R=3D~10D |
|||
|
400 |
406.4 |
426 |
R=3D~10D |
|||
|
450 |
457 |
480 |
R=3D~10D |
|||
|
500 |
508 |
530 |
R=3D~10D |
|||
|
550 |
559 |
R=3D~10D |
||||
|
600 |
610 |
630 |
R=3D~10D |
|||
|
650 |
660 |
R=3D~8D |
||||
|
700 |
711 |
720 |
R=3D~8D |
|||
|
750 |
762 |
R=3D~8D |
||||
|
800 |
813 |
820 |
R=3D~8D |
|||
|
850 |
864 |
R=3D~8D |
||||
|
900 |
914 |
920 |
R=3D~8D |
|||
|
950 |
965 |
R=3D~8D |
||||
|
1000 |
1016 |
1020 |
R=3D~8D |
|||
|
1050 |
1067 |
R=3D~8D |
||||
|
1100 |
1118 |
1120 |
R=3D~8D |
|||
|
1150 |
1168 |
R=3D~8D |
||||
|
1200 |
1219 |
1220 |
R=3D~8D |
|||
|
1250 |
1270 |
R=3D~6D |
||||
|
1300 |
1320.8 |
R=3D~6D |
||||
|
1350 |
1371.6 |
R=3D~6D |
||||
|
1400 |
1422.4 |
R=3D~6D |
||||
|
1450 |
1473.2 |
R=3D~6D |
||||
|
1500 |
1524 |
R=3D~6D |
||||
|
1600 |
1625.6 |
R=3D~6D |
||||
|
1800 |
1828.8 |
R=3D~6D |
||||
|
2000 |
2032 |
R=3D~6D |
||||
제품특징
공정 특징
핫 벤드 파이프재료 활용도를 향상시키기 위해 국지적으로 가열할 수 있습니다. 지속적인 추진으로 제품 일관성이 보장됩니다. 동기식 냉각은 미세 구조와 특성을 제어합니다.
구조적 성능
균일한 벽 두께 분포; 정확한 치수 제어; 굽힘후열처리는-재료 특성을 안정화시킵니다.
유연한 사양
0도에서 100도까지의 각도; 다양한 굽힘 반경; 탄소강, 합금강 및 기타 재료에 적합합니다.
응용
장거리-석유 및 가스 수송 파이프라인
핫 벤드 파이프장거리 전송 파이프라인의 파이프라인 회전, 교차 및 육교, 회피 노드에 적합합니다.- 이 제품은 서부-~-동부 가스 전송 프로젝트와 같은 주요 프로젝트에 적용되며 파이프 직경 범위는 Φ159mm ~ 1220mm로 간선 및 지선의 건설 요구 사항을 충족합니다.
도시가스 파이프라인 네트워크
고압-압력 및 저압-압력-압력 파이프라인 네트워크 및 지형 적응의 방향성 시추 교차에 사용되며 도시 파이프라인 네트워크 공급업체 목록에 포함되었습니다.
중앙 난방 시스템
핫 벤드 파이프120도의 온도 저항을 갖는 조립식 절연 굽은 파이프를 채택하여 난방 네트워크의 노드를 전환하는 데 적합합니다.



인기 탭: 핫 벤드 파이프, 중국 핫 벤드 파이프 제조 업체, 공급 업체, 공장
